Architecture générale
Simplicité des volumes :
En respect avec les principes bioclimatiques, la construction est conçue selon 2 axes : un axe Ouest-Est correspondant à un volume JOUR à l’Ouest et un Volume NUIT à l’Est ; et un axe Nord-Sud correspondant à des pièces de services au Nord et des pièces d’agrément au Sud.
Le volume JOUR à l’Ouest contient les pièces communes, Salon, Cuisine, Entrée. Le volume NUIT contient la suite des parents, les chambres des enfants, les salles de bains. Le volume NUIT est réparti sur deux niveaux.
Vus de l’extérieur, ces deux volumes correspondent à deux cubes surmontés d’une toiture deux-pans. Le cube du volume NUIT dépassant l’autre du fait de l’étage supplémentaire.
Les pièces de service au Nord représentent un espace tampon non-chauffé permettant d’améliorer l’isolation thermique. Vu de l’extérieur, ce volume correspond à la partie du bâtiment avec une toiture-terrasse.
Polyvalence des volumes :
La simplicité des volumes globaux permet d’envisager une utilisation polyvalente. La structuration des espaces est réalisée par des cloisons légères ; ce qui autorise des évolutions futures en fonction des besoins et de l’évolution de la famille.
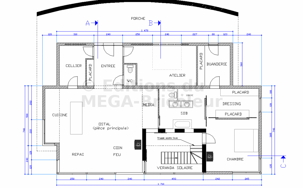
L’entrée, le cellier :

Début de la visite guidée, commençons par l’entrée :
On accède à l’entrée par le Nord à partir de l’abri-voiture. De part sa position centrale, elle permet de déservir le Séjour, le cellier, un WC et l’Atelier.
L’accès au cellier permet de réduire le chemin de l’Abri-Voiture au Cellier ce qui limite efficacement les efforts de déchargement des courses.
Le cellier dessert également la cuisine, de façon la plus logique. Le cellier permet de stocker aliments et équipements qui sans cela encombreraient inutilement la cuisine.
La cuisine :

La cuisine est située dans l’espace du séjour. Un plan de travail central effectue une séparation symbolique. Nous avons voulu intégrer totalement la cuisine au séjour, considérant qu’il s’agit d’une des pièces les plus importantes. Les avantages compensent largement les inconvénients : dans la vie quotidienne ou lorsque nous recevons famille et amis, la maitresse de maison n’est pas à l’écart. Nous avons même constaté que tout le monde aime à se retrouver autour du plan de travail central. Nous n’avons jamais de problèmes d’odeur ; il n’y a d’ailleurs pas de hotte d’aspiration, la VMC est suffisante.
Le séjour :

Sans être trop grand, le séjour permet de diviser l’espace en parties distinctes : coin Feu, Repas, Média (TV, HIFI). Le coin Repas est situé près des grandes baies vitrées permettant de profiter de la lumière naturelle et près de la cuisine. Au contraire, le coin Média est situé dans le volume le plus sombre. Le coin Feu s’adosse à la lourde maçonnerie de la véranda solaire permettant d’y accumuler les calories du poêle à bois.
Par le séjour, on accède à la véranda solaire par deux larges ouvertures.
La véranda solaire :

C’est le pivot central de la maison. Elle dessert le Séjour-Cuisine, l’étage et la suite des parents. De grandes baies vitrées permettent d’accéder à la terrasse. Le sous-sol de la véranda solaire correspond à la cave.
la suite des parents :

La suite est constituée d’une grande chambre, d’un dressing et d’une salle de bains. Toutes ces pièces communiquent entre-elles par de larges ouvertures à panneaux coulissants. L’ouverture de tous les panneaux permet d’apprécier l’espace dans sa globalité. la fermeture permet d’intimiser les espaces. On peut accéder à la salle de bains de la chambre mais aussi du dressing ; et l’on peut accéder au dressing par la chambre et la salle de bain. Ainsi, On peut faire sa toilette puis aller s’habiller directement au dressing sans passer par la chambre.
Le dressing accède également à la buanderie. Et la buanderie accède à l’extérieur, proche de l’étendoir à linge. Cette disposition minimise les déplacements Rangement-lavage-sèchage. Le court passage de la buanderie au séchoir est sous-abri.
l’étage, les chambres d’enfant :

Il comporte trois chambres dont un bureau, une salle de bain et une mezzanine. La mezzanine peut être fermée par un rideau et sert ainsi de chambre d’appoint.
Au départ, il y avait une seule chambre d’enfant de 30m² car c’est rassurant pour deux petits de dormir l’un à côté de l’autre. Puis, les véléïtés d’indépendance venant naturellement, la chambre a été séparées en deux. De part sa souplesse, l’ossature-bois permet d’entreprendre ce genre de travaux avec facilité et confiance.
Les vues de façade
Les coupes
Le plan de masse
Comment choisir les surfaces ?
Bien sûr, il s’agit avant tout d’une affaire de budget. Néanmoins, voici quelques pistes de réflexion permettant de d’effectuer une répartition harmonieuse et utile :
- Des chambres d’enfant avec une surface confortable leur permettront de réaliser toutes leurs activités. Les enfants sont aujourd’hui très gâtés. Il faut de la place pour ranger tous leurs jouets. Paradoxalement, le besoin en surface est d’autant plus grands que l’enfant est jeune. Un circuit 24, un train électrique prennent une place gargantuesque. Alors que pour un ado, les jeux sont plus souvent à l’extérieur. Cependant, il faut tenir compte que les enfants aiment à se retrouver avec leurs parents au Séjour qui devient alors une véritable salle de jeux. D’autre part, la durée du séjour d’un enfant chez ses parents est toute fois relativement courte, comparée au temps que vous passerez dans votre maison. Conclusion : des chambres de 10 à 15m² seront bien suffisantes.
- Il est vrai qu’une belle chambre de grande surface est très agréable à vivre. Mais la chambre des parents ne nécessite pas non plus une grande surface. Sauf exception, la majorité du temps que l’on passe dans sa chambre est dédiée à l’inactivité. L’espace sera optimisé si l’on dispose d’un dressing attenant. Dans certains cas, on y adjoint un bureau ou un établi de couture ; la surface devra être alors un peu plus grande. Même si l’on dispose d’un budget plus que confortable, il est déconseillé de faire une chambre de trop grande surface. Car le sentiment d’intimité et de sécurité peut alors en pâtir ; 40m² est un maximum.
- Le Séjour est la pièce qui permet le plus d’écart. Un petit salon de 20m² paraitra douillet. Un grand séjour de plus de 50m² voire 100m² permettra toutes les audaces décoratives. C’est une affaire de budget.
- La cuisine ne doit pas être négligée. Nous avons maintenant besoin de ranger de nombreux équipements. 10m² est un minimum.
- Pendant la conception des plans, faites-vous plaisirs mais pensez à la revente. Une maison avec un Salon de 150m² et des chambres de 8m² paraitra inharmonieuse. Respectez un certain équilibre des proportions.
- La cuisine américaine, beaucoup en rêve, peu la réalise réellement de peur d’avoir des difficultés à la revente. Et bien Non ! faites-le ! Prévoyez simplement une possibilité de fermeture ultérieure. Et puis à la revente, vous serez surpris de découvrir que ses adeptes sont plus nombreux que ses détracteurs.
- Par l’entrée, vous accueillez vos visiteurs. C’est par elle que viennent les premières impressions. C’est donc un élément important mais pas indispensable. Dans l’entrée, des rangements et autre penderie seront très utiles.
- Les pièces annexes. Cellier et buanderie sont des auxiliaires vraiment très appréciables. Ils permettent de masquer certaines activités génératrices de chaos (lavage, repassage) et permettent bien sûr de ranger de nombreux effets. Si votre budget vous le permet, n’hésitez pas. Entre 5 et 10m² chaque.
- L’atelier. IN-DIS-PEN-SA-BLE pour les autoconstructeurs. Pas besoin de vous faire un dessin. 20m² au moins. Pour un atelier avec de grosses machines, combinée-bois, plus de 40m². Dans ces cas-là, une annexe séparée de la maison peut être une bonne solution. Personnellement, mon atelier jouxte un abri-voiture couvert mais non clos de 50m², séparé par une porte de garage. Je peux facilement sortir mes machines lorsque j’usine de longues pièces de bois, même s’il pleut. Heureusement, mes voisins sont compréhensifs. S’ils me lisent, je les remercie à nouveau.
- D’autres pièces atypiques peuvent être construites en fonction des passions : salle de billard, salle de musculation ou espace petit train électrique. Dans ces cas-là, prévoyez cette espace de façon polyvalente. Pensez à des transformations ultérieures en chambres, salle de bains, ou studio indépendant que vous pourrez mettre en location.
- Plain-pied ou étage ? cette question fait toujours débat et possède ses intégristes. Un plain-pied évite l’escalier bien sûr mais génère des couloirs et surfaces perdues. Une maison à étage est plus compacte, permet de diminuer les coûts de gros œuvre, mais elle est plus bruyante et l’entretien peut être plus pénible pour des personnes âgées. Généralement, les enfants aiment bien se situer en hauteur. Pour des parents, il peut être plus rassurant de savoir ses enfants en hauteur, contrairement à une chambre en rez-de-jardin avec des fenêtres ouvertes les nuits chaudes d’été.
- une autre idée sympathique lorsque l’on a les moyens, concevoir plusieurs petits blocs d’habitation indépendants, reliés ou non par des couloirs vitrés. Un bloc principal où tout le monde se retrouve, un bloc enfants, un bloc parent, un bloc Ami, un bloc Atelier/Jardin. Cette solution est bien plus couteuse qu’une solution monobloc, est source de surconsommations énergétiques et consomme plus de surface de terrain. Mais c’est la solution la plus évolutive et celle qui garantit le plus d’indépendance et d’intimité. Sur le plan esthétique, on se retrouve dans un petit hameau personnel, sympa non ?













