Laurent et Marine Joets sont un jeune couple avec deux enfants. Lorsqu’ils se sont mariés en 2003, l’idée d’avoir un jour leur propre foyer germait déjà depuis un an dans leur tête. Le couple a commencé à contacter des entreprises de constructions de maisons individuelles comme les Maisons Pierre ou les Maisons Lelievre, mais les offres proposées ne correspondaient pas à leurs attentes. « On s’est rendu compte qu’ils avaient un plan de base qui pourrait certes, être modifié selon nos attentes, mais cela ne nous semblait pas satisfaisant. On voulait une maison qui soit adaptée aux personnes handicapées, car nous avons des amis proches qui sont dans ce cas là. Il n’y a également aucune visibilité sur les matériaux qu’ils utilisaient. Finalement, personne n’a pu satisfaire nos attentes ».
L’autoconstruction est devenue la solution la plus évidente pour répondre justement à leurs attentes. Cela pour plusieurs raisons : Etant encore un jeune couple, ils n’avaient pas les moyens de s’acheter une maison. D’autre part, le père de Marine avait déjà construit sa propre maison dans les années 80 en tant que Castor. Ils ont eux même travaillé bénévolement sur un chantier de restauration de monuments lorsqu’ils étaient un peu plus jeunes. Ils ont ainsi acquis l’expérience du travail de construction (maçonnerie, taille de pierre…). Le grand père de Laurent était entrepreneur et avait du matériel de construction à sa disposition. Il faut dire que le couple est issu d’une famille de bricoleurs. L’autoconstruction était finalement leur destin en quelque sorte. Et la dernière raison qui les a poussé à construire eux-mêmes est qu’ils voulaient tout simplement « une maison originale ».
Bien qu’ayant acquis une certaine expérience dans la construction, le couple ne pouvait pas se lancer dans cette aventure sans aucune connaissance réelle. Sous les conseils du père de Marine, ils vont contacter l’association des Castors d’Ile-de-France, et s’inscrivent comme adhérents Castors à l’agence de Corbeil le 20 octobre 2003. Pour combler les lacunes dans les connaissances techniques de construction, le couple a quasiment appris chaque corps de métier grâce à des livres comme « Les plans de votre maison », collection Concevoir et Construire, éd. Alternatives, 2002, qui donnent des conseils sur l’ordonnancement des pièces dans la maison et grâce à des manuels techniques comme « Construire sa Maison : Chauffage central », de Georges Deutsch, éd. Eyrolles, 1987, sans oublier le « Mémento de la Construction » rédigé par des adhérents Castors, Castors 9e édition, Novembre 2002. Les émissions télévisées sur la décoration et l’aménagement de la maison, comme Question Maison sur la 5, ou D&CO sur M6 ont également contribué à inspirer ces autoconstructeurs en herbe. Un reportage sur leur expérience, sera d’ailleurs diffusé sur la 5 en mai 2005. Mais l’outil le plus important qui a réellement aidé le couple est l’Internet : « J’aime à dire qu’on a fait une maison Google ! Dès qu’on ne sait pas faire un truc, hop Google et boom ! » (Marine). Il faut dire que la banalisation d’Internet s’est accentuée ces 10 dernières années. S’ajoutant à cela, l’extension importante du parc informatique et des accès haut-débit dans les foyers français. Beaucoup plus de monde a accès à l’information grâce au développement de cette technologie.
L’adhésion aux Castors s’est faite au moment où le couple commençait à réfléchir sur les plans. Contacter un architecte était pour eux une option, mais ils souhaitaient réellement dessiner eux-mêmes les plans. Il y a une réelle volonté chez ce couple de faire la totalité du travail, de la conception à la construction tout seul. Laurent a une certaine expérience dans le dessin technique car il est professeur de technologie dans un lycée. L’association Castors leur a permis de dessiner eux même les plans dans les normes de représentation, pour le dépôt de dossier du permis de construire. En janvier 2004, le couple dépose leur dossier à la mairie.
Cette première tentative sera refusée pour les raisons suivantes :
- Il manquait une coupe longitudinale au dossier.
- Il manquait les cotations du terrain naturel et du terrain fini sur tous les plans. La largeur du garage était trop grande
- Toiture de la tour trop compliquée, pour une sombre histoire de pentes de toit.
Le dossier complété et corrigé est déposé une seconde fois à la maire. Deux mois plus tard, c’est-à-dire le 5 mai 2004, ils obtiennent enfin le permis de construire. Le terrain est en fond de parcelle de la maison du père de Marine. Se trouvant en cœur d’îlot, il a fallu acheter une bande de terrain de 3m à la parcelle contigüe sur rue afin d’y permettre l’accès.
Le premier coup de pelleteuse démarre l’aventure du chantier le 07 octobre 2004. Le couple engage des professionnels pour l’étude de sol, afin de déterminer la profondeur des fondations ainsi que leur dimensionnement. Ce choix ne sera pas regretté car le terrain est fortement glaiseux (près de 1m50 d’argile à déblayer). Quelques ouvriers sont enrôlés pour le travail ardu du terrassement et également pour celui de la charpente et de la couverture. Pour le reste, quasiment la totalité du chantier a été réalisé par le couple avec l’aide ponctuelle de la famille et de quelques amis. Le gros œuvre est à peu près achevé en avril 2005. Le second œuvre ainsi que les finitions dureront un plus d’un an, et le weekend du 11 novembre 2006, la petite famille peut enfin emménager dans leur petite maison. Le rez-de-chaussée est alors quasiment habitable, et l’étage encore en chantier. Aujourd’hui, le travail de finitions continue encore, de façon moins intense qu’au début certes, mais avance surement. A l’étage, il ne reste plus que les chambres des enfants et la salle d’eau. La maison en perpétuel chantier fait partie du quotidien de la petite famille de Castors.
L’adhésion aux Castors leur a permis multiple avantages. Ils ont bénéficié de réduction dans plusieurs magasins de bricolage et de construction tels que Leroy Merlin, Castorama, Lafarge ou Point P. Grâce aux prix Castors, ils ont pu choisir des produits haut de gamme à la pointe de la technologie. Ils sont par exemple les premiers Castors à couler des chapes anhydrites (chape liquide spécifique aux planchers chauffant : Sa légèreté, son épaisseur réduite, sa rapidité de mise en œuvre, ses propriétés autonivelantes, sa compatibilité avec tous les supports et les systèmes d’isolation ou de chauffage, et ses délais d’accessibilité en font la chape la plus performante sur les chantiers de rénovation). L’avantage de concevoir et de construire soi-même sa maison est qu’on a une totale liberté dans l’ordonnancement des pièces et dans le choix des matériaux. Le point de départ du projet était d’avoir une « vraie cuisine », ou plus clairement, une cuisine spacieuse et fonctionnelle. Le parti pris du couple était également une maison adaptée aux personnes à mobilité réduite, avec au RDC des W.C. aux normes handicapées. Quoique la porte aurait pu s’ouvrir soit vers l’extérieur, soit dans les deux sens, permettant une évacuation facile en cas de malaise.
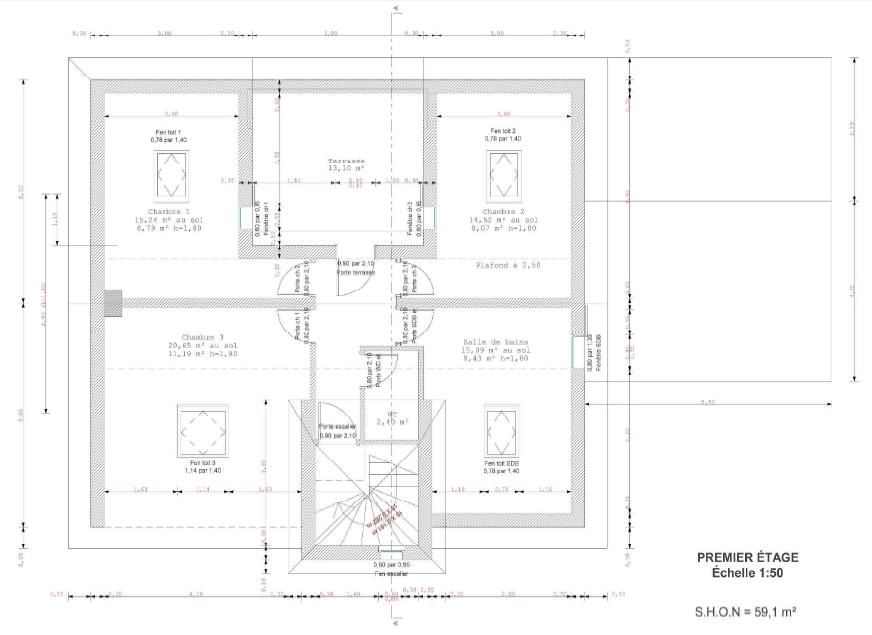
En effet, le couple avoue qu’il n’y a pas que des avantages dans l’autoconception- autoconstruction. Travaillant pratiquement seuls, ils ont parfois du mal à prendre du recul par rapport à leur projet et avouent avoir fait parfois des erreurs après coup. Au niveau de l’agencement de l’espace, le salon leur paraît trop petit. Sur les plans il fait environ 29m², mais dans la réalité il ne fait que 20m² car 9m² est affecté à l’espace de l’entrée et de desserte. A l’étage, le couple regrette que la salle de bain soit trop grande (15m² au sol) au dépend de la surface au sol de la Chambre 2 (14m²). Dans la mise en œuvre en elle-même, le couple s’est heurté parfois à de mauvaises surprises comme le balancement de l’escalier. Sur les plans, ce dernier était correct, mais c’était lors de la confection en elle-même que l’erreur s’est produite. Au niveau des descentes d’eau, ils ont également oublié de réserver des trémies pour la gaine, ce qui les obligeait à percer directement dans la dalle. Sinon, ayant quand même passé deux ans à réfléchir sur les plans, et deux ans dans la mise en œuvre, l’ensemble leur satisfait à peu près et ils comptent « faire mieux pour la prochaine fois ».
Le couple disposait au départ de 50 000 €. Ils obtiennent un prêt à la banque de 150 000 €. Bénéficiant de la gratuité du terrain (valeur de 107 000 €) et des remises Castors, ils dépenseront en tout, environ 210 000 € pour la construction de leur T6.



